In order to meet the needs of our national PV power generation, our company developed two series of PV power generation transformers on the base of wind power generation combination transformers.
1, ZG(F)SF11-Z.G-□/35 series three-phase split type off-circuit voltage-change PV power combination transformer
The structure of this series of products is same as that of wind power generation transformers, except that L.V. side winding, outlet method and electrical equipments adopt special structures. L.V side is equipped with double-split winding and two outlets which can be connected with two PV generators at the same time, meanwhile, equipped with essential protective electric elements. This series of products are with characteristics of good electrical performance, small size, light weight, reliable operation, easy to install, high cost-effective, etc.
Features of products’ structure
a, design thought: adopts” two generators, one transformer” program, means two PV generators combines with one transformer. L.V side is equipped with double-split winding ,two outlets and L.V electric system which can be connected with two PV generators at the same time.
b, users can rise one transformer’s output capacity under the capacity of same generators, which can save users’ investment and operational cost.
c, materials of transformers’ casings can be chosen according to different environmental requirements: conventional composite panels, stainless steel composite panels, non-metallic fiberglass cement, etc.
d, casing material has a good level of protection and corrosion resistance, which can effectively prevent wind, rain, snow and salt erosion
e, H.V. electrical equipments have five protection functions: H.V. fuse of substations and overload switchgear carry out interactive protection, prevent transformers working under the condition of lacking phase; H.V use three-position load switch that can be checked and repaired safely under the state of grounding; H.V overload switch and grid door of transformer chamber adopt “ electric locking”, realize the protection function of automatic power-off when mistakenly open the grid door.
f, transformer chamber adopts natural ventilation and automatic controlling forced cooling exhaust devices, has a exhaust system which can be controlled automatically with temperature change, can effectively control and low chamber’s temperature, meet the need of full overload operation.
g, low voltage equips with 690V main circuit breakers, over-voltage protection equipments , and we can design complete automatic measurement and intelligent control systems.
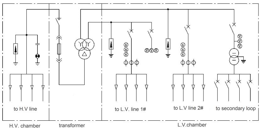
A Schematic

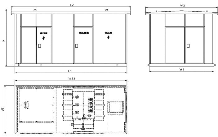
Outline layout

2, YBW11-Z.G-□/40.5 series PV generation prefabricated substation
The structure of this series of products is same as that of wind power generation prefabricated substations, except that L.V. side winding, outlet method and electrical equipments adopt special structures. L.V side is equipped with double-split winding and two outlets which can be connected with two PV generators at the same time, meanwhile, equipped with essential protective electric elements. This series of products are with characteristics of good electrical performance, beautiful appearance, reliable operation, easy to install, high cost performance, etc.
A Schematic

Outline layout
